• Propiedades en venta en España
  • Una colección de casas de lujo
  • Amplia selección de apartamentos de bajo coste en España
  • Servicio post-venta y gestión de la propiedad

Trabajando para ustedes en ofertas y reducción de precios estamos encantados de ayudarles

Noticias

Viaje a lo largo del "sol y playa". Luxury Real Estate Costa del Sol
Los campos de golf de clase mundial y los parques de magia, clubes de yates de renombre y restaurantes de moda, playas vírgenes, bañadas por el sol 11 meses del año - estos son los atributos de este vivir en el sur de la costa del sol.
España. 12 costas, 12 oportunidades para encontrar la felicidad
Los estilos arquitectónicos, las opciones de los precios inmobiliarios, la infraestructura, el estado de ánimo ... En cada una de las 12 costas españolas Costa que cuenta ... Con el fin de elegir las vacaciones perfectas y la vida, tienes que sentir el espíritu de las ciudades acogedoras y limpias, las provincias españolas.
"Star", en España, o cómo llegar a ser un vecino de Cristiano Ronaldo
Celebrity Real Estate en España A principios de 2014 España se unió a la lista de los países más atractivos para la adquisición de la propiedad. Y ya que los compradores a menudo no actúan ciudadanos de a pie, y las estrellas de clase mundial. ¿Quién en realidad cayó bajo el embrujo del flamenco y la fiesta?

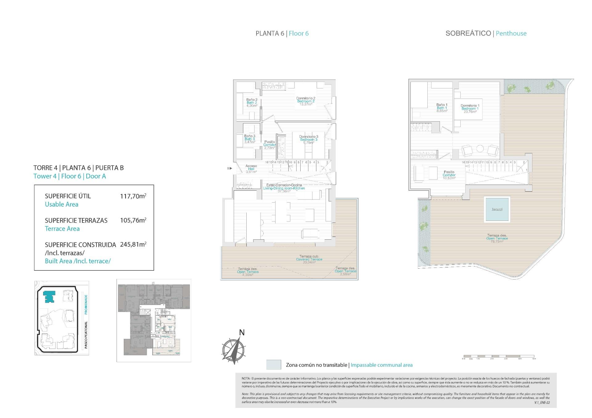
MARAVILLOSO ATICO A 50M DE LA PLAYA

Ref.N: N6028/7515
€ 830 000
MARAVILLOSO ATICO A 50M DE LA PLAYA~ ~ ¿Quieres disfrutar del sol y el mar desde tu jacuzzi? Ven a conocer este impresionante ático de amplias terrazas y habitaciones. Además dispondrás de todas las comodidades que ofrece el residencial en el que se encuentra integrado , con un gran jardín y una piscina espectacular, y todo ello a tan sólo 50 metros de la playa.~

   

Ofertas similares