Los campos de golf de clase mundial y los parques de magia, clubes de yates de renombre y restaurantes de moda, playas vírgenes, bañadas por el sol 11 meses del año - estos son los atributos de este vivir en el sur de la costa del sol.
Los estilos arquitectónicos, las opciones de los precios inmobiliarios, la infraestructura, el estado de ánimo ... En cada una de las 12 costas españolas Costa que cuenta ... Con el fin de elegir las vacaciones perfectas y la vida, tienes que sentir el espíritu de las ciudades acogedoras y limpias, las provincias españolas.
Celebrity Real Estate en España
A principios de 2014 España se unió a la lista de los países más atractivos para la adquisición de la propiedad. Y ya que los compradores a menudo no actúan ciudadanos de a pie, y las estrellas de clase mundial. ¿Quién en realidad cayó bajo el embrujo del flamenco y la fiesta?
RESIDENCIAL DE OBRA NUEVA EN COMPLEJO PRIVADO EN LA PROVINCIA DE MURCIA
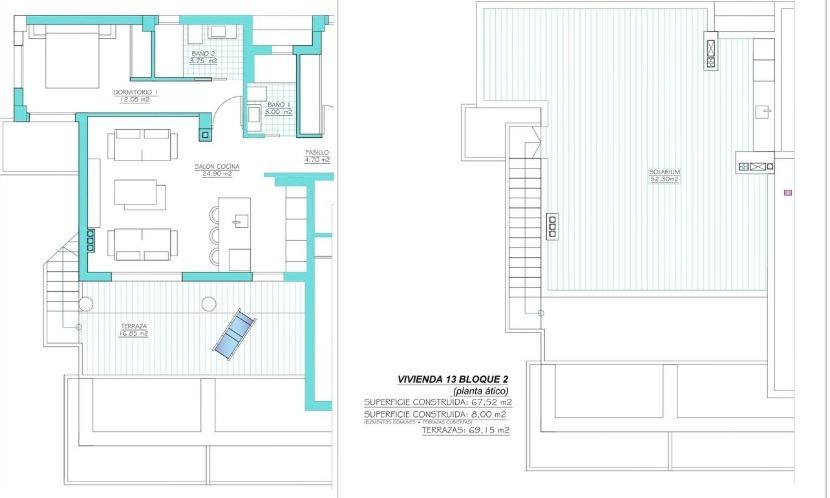
RESIDENCIAL DE OBRA NUEVA EN COMPLEJO PRIVADO EN LA PROVINCIA DE MURCIA~ ~ Residencial de obra nueva con 60 apartamentos distribuidos en 4 bloques con zona de terrazas para planta baja, primera y segunda, piscina comunitaria, piscina climatizada y solarium con cocina de verano en los áticos, para disfrutar de todas las horas de sol todos los días del año.~ ~ Las viviendas disponen de 2 dormitorios y 2 baños, así como de plaza de garaje y trastero en el sótano.~ ~ Estas viviendas están diseñadas con un estilo contemporáneo y un concepto abierto, que incluye una cocina totalmente equipada y un salón-comedor.~ ~ Las propiedades cumplirán con los más altos estándares e incluyen~ ~ Cocina completamente amueblada y equipada con horno y microondas en columna, frigorífico y lavavajillas integrados, placa de inducción y campana extractora.~ Iluminación LED: en el interior de la vivienda (comedor, cocina, pasillos y baños), así como en las zonas exteriores.~ Armarios forrados con cajones.~ Persianas motorizadas en los dormitorios.~ Suelo radiante en los baños.~ Cuartos de baño totalmente equipados con inodoro, lavabo, espejo, ducha con efecto lluvia y mamparas.~ Preinstalación de aire acondicionado por conductos.~ Preinstalación de punto de carga para vehículos eléctricos.~ Solarium con cocina de verano, con preinstalación de electrodomésticos.~ Piscina comunitaria.~ Piscina climatizada.~ Plaza de garaje y trastero en el sótano.~ ~ ~ Situado en un complejo privado, con entrada de acceso principal y seguridad 24 horas. El complejo está diseñado en torno a una impresionante zona verde de 126.000 m2.~ ~ Cuenta con rutas de senderismo y ciclismo, instalaciones deportivas, pistas de pádel y tenis, un campo de minigolf, jardines, parques para perros, zonas de ocio, casa club.... También en la zona central se encuentra la joya del complejo, un lago artificial cristalino de casi 17.000m2 de superficie de agua, rodeado de playas de arena blanca y palmeras, que trae un trozo del Caribe a la Región de Murcia.~ ~ Hay 2 islas en el lago, una de ellas con su propio bar, también hay "Chiringuitos de playa" repartidos por el lago.~ ~ El complejo está estratégicamente situado a menos de 4 km de la playa y de la localidad de Los Alcázares, donde se pueden practicar diversos deportes náuticos, rodeado de varios campos de golf y de la ciudad de Cartagena a menos de 15 minutos en coche y a 22 km del aeropuerto de Murcia, teniendo por tanto una amplia oferta cultural, gastronómica y deportiva al alcance.~
Utilizamos cookies para personalizar su experiencia de navegación y el contenido que se le muestra, así como sugerencias que pueden ser relevantes para usted. La tienda utiliza las cookies necesarias (que garantizan el funcionamiento del sitio o facilita su uso), por ejemplo, para almacenar configuraciones de filtrado o conexión, así como cookies analíticas. No utilizaremos ni permitiremos que terceros utilicen datos de análisis estadísticos para rastrear o recopilar cualquier información que le permita identificar a los visitantes de este sitio. Al hacer clic en "Acepto" o continuar la búsqueda en el sitio, usted acepta la grabación y el uso de cookies. Puede cancelar su consentimiento en cualquier momento cambiando la configuración de su navegador web y eliminando las cookies grabadas. Más información - en la política de cookies