Los campos de golf de clase mundial y los parques de magia, clubes de yates de renombre y restaurantes de moda, playas vírgenes, bañadas por el sol 11 meses del año - estos son los atributos de este vivir en el sur de la costa del sol.
Los estilos arquitectónicos, las opciones de los precios inmobiliarios, la infraestructura, el estado de ánimo ... En cada una de las 12 costas españolas Costa que cuenta ... Con el fin de elegir las vacaciones perfectas y la vida, tienes que sentir el espíritu de las ciudades acogedoras y limpias, las provincias españolas.
Celebrity Real Estate en España
A principios de 2014 España se unió a la lista de los países más atractivos para la adquisición de la propiedad. Y ya que los compradores a menudo no actúan ciudadanos de a pie, y las estrellas de clase mundial. ¿Quién en realidad cayó bajo el embrujo del flamenco y la fiesta?
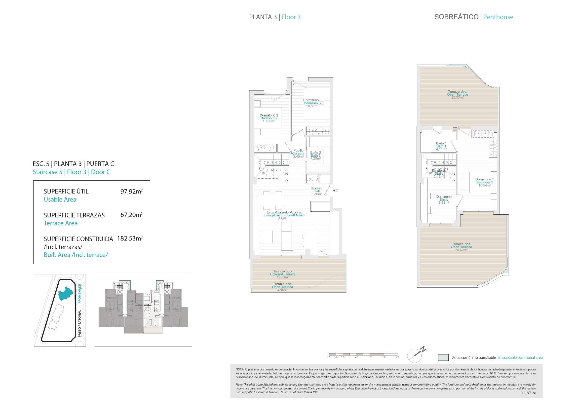
COMPLEJO DE OBRA NUEVA EN VILLAYOJOSA~~Complejo residencial de 42 apartamentos y áticos de obra nueva en Villayojosa situado a pocos pasos de la playa.~~Viviendas de lujo de 1, 2 y 3 dormitorios diseñadas hasta el más mínimo detalle.~A tan sólo 200 metros del mar, con amplias terrazas perfectas para relajarse y disfrutar de las vistas al mar.~~Situada en un entorno natural, esta promoción cuenta con piscina, jardines, zona infantil, gimnasio equipado y sauna.~~Viviendas en planta baja de 1 dormitorio y 1 baño con terrazas y jardines privados.~Apartamentos de 1 y 2 dormitorios y 1 y 2 baños con amplias terrazas donde dispone de una zona cubierta y otra descubierta.~Áticos de 3 dormitorios y 2 baños con terrazas y solariums privados.~~Todas las viviendas disponen de plaza de parking privada.~~~Villajoyosa es una perla escondida en la Costa Blanca española. Este colorido pueblo pesquero se encuentra entre Benidorm y El Campello, a unos 30 minutos en coche del aeropuerto de Alicante.~~En los últimos años, este idílico pueblo se ha convertido en un lugar muy solicitado por residentes de segundas residencias y turistas. Villajoyosa tiene mucho que ofrecer, desde la amplia playa de arena hasta las estrechas y coloridas calles del centro histórico.~~Hoy en día, más de treinta mil personas viven en Villajoyosa y, sobre todo, las coloridas casas ofrecen toneladas de inspiración para los numerosos artistas.~~Villajoyosa también es conocida por su delicioso museo de la fábrica de chocolate Valor.~
Utilizamos cookies para personalizar su experiencia de navegación y el contenido que se le muestra, así como sugerencias que pueden ser relevantes para usted. La tienda utiliza las cookies necesarias (que garantizan el funcionamiento del sitio o facilita su uso), por ejemplo, para almacenar configuraciones de filtrado o conexión, así como cookies analíticas. No utilizaremos ni permitiremos que terceros utilicen datos de análisis estadísticos para rastrear o recopilar cualquier información que le permita identificar a los visitantes de este sitio. Al hacer clic en "Acepto" o continuar la búsqueda en el sitio, usted acepta la grabación y el uso de cookies. Puede cancelar su consentimiento en cualquier momento cambiando la configuración de su navegador web y eliminando las cookies grabadas. Más información - en la política de cookies