Los campos de golf de clase mundial y los parques de magia, clubes de yates de renombre y restaurantes de moda, playas vírgenes, bañadas por el sol 11 meses del año - estos son los atributos de este vivir en el sur de la costa del sol.
Los estilos arquitectónicos, las opciones de los precios inmobiliarios, la infraestructura, el estado de ánimo ... En cada una de las 12 costas españolas Costa que cuenta ... Con el fin de elegir las vacaciones perfectas y la vida, tienes que sentir el espíritu de las ciudades acogedoras y limpias, las provincias españolas.
Celebrity Real Estate en España
A principios de 2014 España se unió a la lista de los países más atractivos para la adquisición de la propiedad. Y ya que los compradores a menudo no actúan ciudadanos de a pie, y las estrellas de clase mundial. ¿Quién en realidad cayó bajo el embrujo del flamenco y la fiesta?
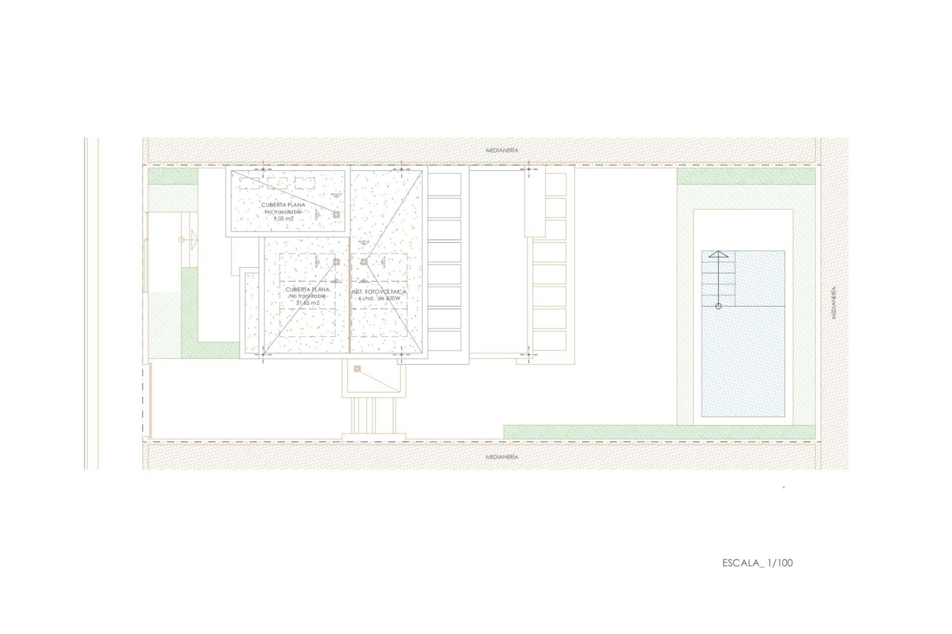
VILLAS DE OBRA NUEVA EN SAN JUAN DE LOS TERREROS~~La arquitectura contemporánea e innovadora de las villas modernas llega para crear un complejo residencial situado en la localidad de San Juan de los Terreros en Pulpí, Almería, en el sur de España.~~Estas cuidadas viviendas y complejo residencial combinan un excepcional nivel de diseño y calidad con los más altos estándares de sostenibilidad y bienestar. Viviendas meticulosamente diseñadas por el equipo técnico de arquitectos, para que la luz, la amplitud y la orientación doten a cada vivienda y parcela de un carácter especial. Espacios únicos que abren la puerta a un nuevo estilo de vida para disfrutar.~~La cimentación y estructura de las viviendas están resueltas con hormigón armado y bajo garantía decenal. ~Fachadas diseñadas para reducir la demanda energética de la vivienda, combinadas con diversos materiales para conseguir una estética coherente en cuanto a composición y color como se refleja en la infografía.~Amplias terrazas dotadas de sólidos antepechos para proporcionar seguridad en las barandillas de las terrazas, otorgando amplitud y luminosidad. ~Los cerramientos exteriores de la parcela se tratarán con los mismos materiales utilizados en la vivienda, garantizando la integración en el conjunto residencial.~Cubiertas planas ventiladas y aisladas sobre forjados, con diferentes acabados según su ubicación y uso. ~La puerta de entrada a la vivienda será blindada. Las puertas del dormitorio principal, baños secundarios y aseos incluirán cerraduras. ~La carpintería exterior constará de ventanas y balconeras de Aluminio lacado ~con persianas enrollables de lamas de aluminio, motorizadas en salones. ~Sistema de video portero, que garantiza el control de acceso individual para cada una de las viviendas. ~Los cuartos de baño estarán equipados con lavabo, inodoro y ducha, y los aseos dispondrán de inodoro y lavabo. ~Los baños cuentan con sanitarios de diseño moderno, de porcelana vitrificada acabada en blanco, de la marca Roca y modelo Gap, con grifería monomando cromada o negro mate a elegir. ~Las mamparas de ducha irán fijadas con cristal templado de 8mm con una longitud de 80cm. ~Cada preinstalación está diseñada para un sistema de hasta 10 paneles, que pueden instalarse con un inversor solar conectado a la red eléctrica de la vivienda para minimizar el consumo eléctrico. ~Estos paneles se integrarán en el tejado, en la zona de instalación, ocultos desde el exterior de la vivienda.~La entrada de aire a las viviendas se asegurará mediante la incorporación de un sistema de microventilación en las ventanas de salones y dormitorios. ~Salida de humos independiente para campana extractora de cocina.~Preinstalación de domótica en la vivienda con preparación para una futura instalación de domótica para control de climatización y calefacción de habitaciones, persianas y posibles sistemas de alarma de intrusión. ~Preinstalación de videovigilancia en la zona de aparcamiento y zonas interiores de la parcela.~Cada vivienda dispondrá de una cocina totalmente instalada y acabada en color blanco mate, según diseño, con sistema GOLA. ~Los armarios interiores serán blancos, con puertas abatibles y cajones con freno bajo placa vitrocerámica, listos para instalar electrodomésticos vistos. Los electrodomésticos no están incluidos. ~Los dormitorios con armarios empotrados se entregarán con puertas correderas en color blanco mate.~Estas viviendas se caracterizarán por su eficiencia y ahorro energéticos, así como por su baja contaminación. ~Están diseñadas con un enfoque de mayor eficiencia para un menor consumo energético, promoviendo un uso racional de la energía a la vez que se cuida el medio ambiente, la calidad y el confort climático dentro de la vivienda. ~Los vidrios de baja emisividad evitan la pérdida de calor hacia el exterior, lo que se traduce en un ahorro económico al retener el calor en la vivienda durante el invierno y evitar la entrada de calor durante el verano. ~Los sistemas de climatización y agua caliente sanitaria están diseñados con sistemas individuales para maximizar el consumo y la eficiencia de cada vivienda.~~San Juan de los Terreros es una pedanía costera perteneciente al municipio de Pulpí. Es conocida por sus magníficas playas, las últimas de Andalucía. Frente a la costa de San Juan de los Terreros se encuentran dos pequeños islotes de naturaleza volcánica que forman el Monumento Natural de Isla de Terreros-Isla Negra. El monumento más característico de la localidad es el Castillo de San Juan de los Terreros, construido en 1764 sobre un promontorio desde el que, en días despejados, se divisa gran parte de las costas de Almería y Murcia. Integrado en la tranquilidad y belleza de su propia naturaleza, bañado por playas y calas de aguas cristalinas, clasificadas entre las mejores de España. Rodeado de paisajes naturales protegidos que nos llenan de calma y a la vez, nos recargan de energía, gracias a una vibrante oferta gastronómica, social y deportiva. Restaurantes exclusivos, clubes deportivos y, por supuesto, excelentes campos de golf con vistas al mar como Aguilón Golf. Un destino perfecto para disfrutar en familia durante todo el año.~
Utilizamos cookies para personalizar su experiencia de navegación y el contenido que se le muestra, así como sugerencias que pueden ser relevantes para usted. La tienda utiliza las cookies necesarias (que garantizan el funcionamiento del sitio o facilita su uso), por ejemplo, para almacenar configuraciones de filtrado o conexión, así como cookies analíticas. No utilizaremos ni permitiremos que terceros utilicen datos de análisis estadísticos para rastrear o recopilar cualquier información que le permita identificar a los visitantes de este sitio. Al hacer clic en "Acepto" o continuar la búsqueda en el sitio, usted acepta la grabación y el uso de cookies. Puede cancelar su consentimiento en cualquier momento cambiando la configuración de su navegador web y eliminando las cookies grabadas. Más información - en la política de cookies