Los campos de golf de clase mundial y los parques de magia, clubes de yates de renombre y restaurantes de moda, playas vírgenes, bañadas por el sol 11 meses del año - estos son los atributos de este vivir en el sur de la costa del sol.
Los estilos arquitectónicos, las opciones de los precios inmobiliarios, la infraestructura, el estado de ánimo ... En cada una de las 12 costas españolas Costa que cuenta ... Con el fin de elegir las vacaciones perfectas y la vida, tienes que sentir el espíritu de las ciudades acogedoras y limpias, las provincias españolas.
Celebrity Real Estate en España
A principios de 2014 España se unió a la lista de los países más atractivos para la adquisición de la propiedad. Y ya que los compradores a menudo no actúan ciudadanos de a pie, y las estrellas de clase mundial. ¿Quién en realidad cayó bajo el embrujo del flamenco y la fiesta?
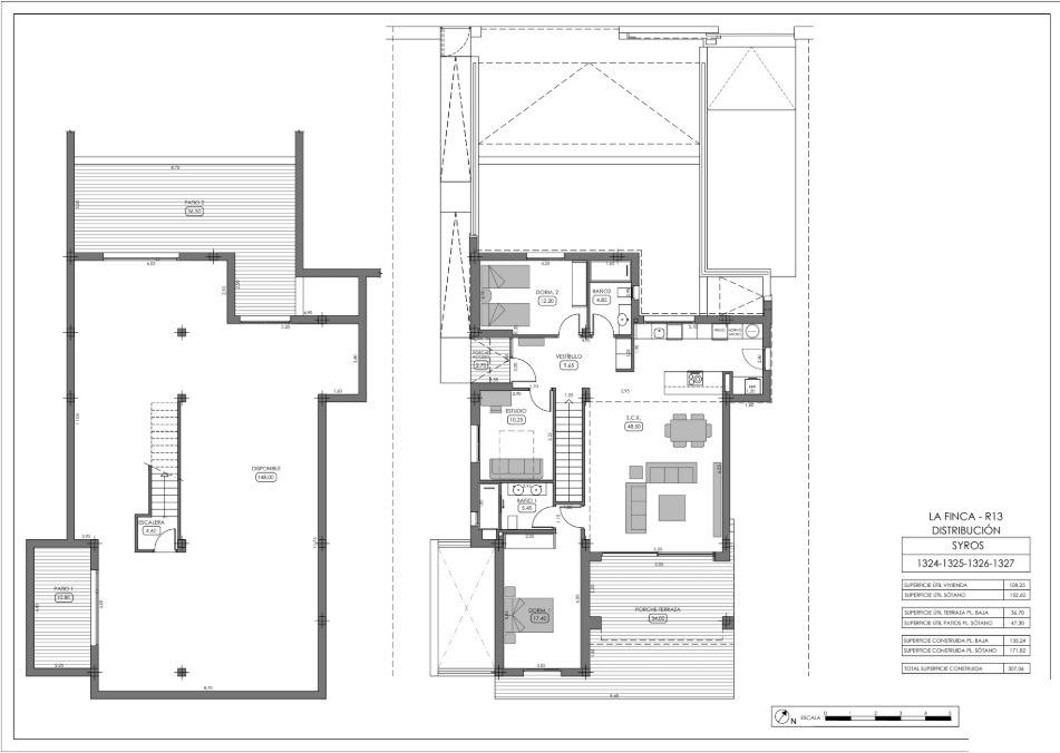
Villas contemporáneas con piscina privada en La Finca Golf Resort, Algorfa
Villas contemporáneas con piscina privada en La Finca Golf Resort, Algorfa~~Viviendas exclusivas en una prestigiosa comunidad de golf~Situadas en el famoso La Finca Golf Resort en Algorfa, Costa Blanca Sur, estas villas a estrenar ofrecen la combinación perfecta de diseño moderno, comodidad y estilo de vida mediterráneo. Rodeadas de naturaleza y tranquilidad, este entorno residencial ofrece un ambiente apacible sin renunciar a la proximidad a todos los servicios esenciales y opciones de ocio.~~Diseño elegante en una sola planta~Cada villa se distribuye en una sola planta y cuenta con 3 amplios dormitorios con armarios empotrados y un vestidor en la suite principal. Los 2 cuartos de baño, totalmente equipados, incluyen muebles suspendidos, espejos, duchas a ras de suelo con mamparas de cristal y calefacción por suelo radiante para un máximo confort. La cocina abierta con barra de desayuno se integra a la perfección con la sala de estar y el comedor, creando un espacio luminoso y funcional. Una zona de lavandería independiente añade comodidad a la vida diaria.~~Vida al aire libre con piscina privada y jardín~Las grandes puertas correderas de cristal conectan el salón con la terraza y el jardín, donde encontrará una pérgola integrada y una piscina privada, el escenario ideal para disfrutar de las cálidas tardes mediterráneas. Cada vivienda cuenta además con un sótano semiacabado de 171 m2 con ventilación natural, que ofrece infinitas posibilidades de personalización, como un gimnasio, una sala de cine o una suite para invitados.~~Ubicación privilegiada en la Costa Blanca~La Finca Golf Resort es uno de los campos de golf más prestigiosos de la región y ofrece a los residentes un estilo de vida rodeado de naturaleza, deporte y relajación. La zona de Algorfa es conocida por su tranquilidad y encanto, a la vez que se encuentra a poca distancia en coche de playas, centros comerciales y atracciones culturales.~~Distancias clave desde las villas:~Club de golf La Finca: a poca distancia a pie~Playas de Guardamar del Segura: 20 km~Centro comercial Zenia Boulevard: 15 km~Aeropuerto de Alicante: 40 km~Aeropuerto de Murcia: 55 km~Torrevieja: 20 km~~Lo mejor del estilo de vida mediterráneo~Estas villas combinan la tranquilidad de un entorno natural con la comodidad de la vida moderna, lo que las hace ideales como residencia permanente, refugio vacacional o inversión. Con acabados de alta calidad, espacios exteriores privados y una ubicación privilegiada cerca del golf y las playas, ofrecen todo lo necesario para una vida privilegiada en la Costa Blanca.~~Póngase en contacto con nosotros hoy mismo para obtener más información o concertar una visita y descubrir su nueva villa en La Finca Golf Resort en Algorfa.~
Utilizamos cookies para personalizar su experiencia de navegación y el contenido que se le muestra, así como sugerencias que pueden ser relevantes para usted. La tienda utiliza las cookies necesarias (que garantizan el funcionamiento del sitio o facilita su uso), por ejemplo, para almacenar configuraciones de filtrado o conexión, así como cookies analíticas. No utilizaremos ni permitiremos que terceros utilicen datos de análisis estadísticos para rastrear o recopilar cualquier información que le permita identificar a los visitantes de este sitio. Al hacer clic en "Acepto" o continuar la búsqueda en el sitio, usted acepta la grabación y el uso de cookies. Puede cancelar su consentimiento en cualquier momento cambiando la configuración de su navegador web y eliminando las cookies grabadas. Más información - en la política de cookies