Los campos de golf de clase mundial y los parques de magia, clubes de yates de renombre y restaurantes de moda, playas vírgenes, bañadas por el sol 11 meses del año - estos son los atributos de este vivir en el sur de la costa del sol.
Los estilos arquitectónicos, las opciones de los precios inmobiliarios, la infraestructura, el estado de ánimo ... En cada una de las 12 costas españolas Costa que cuenta ... Con el fin de elegir las vacaciones perfectas y la vida, tienes que sentir el espíritu de las ciudades acogedoras y limpias, las provincias españolas.
Celebrity Real Estate en España
A principios de 2014 España se unió a la lista de los países más atractivos para la adquisición de la propiedad. Y ya que los compradores a menudo no actúan ciudadanos de a pie, y las estrellas de clase mundial. ¿Quién en realidad cayó bajo el embrujo del flamenco y la fiesta?
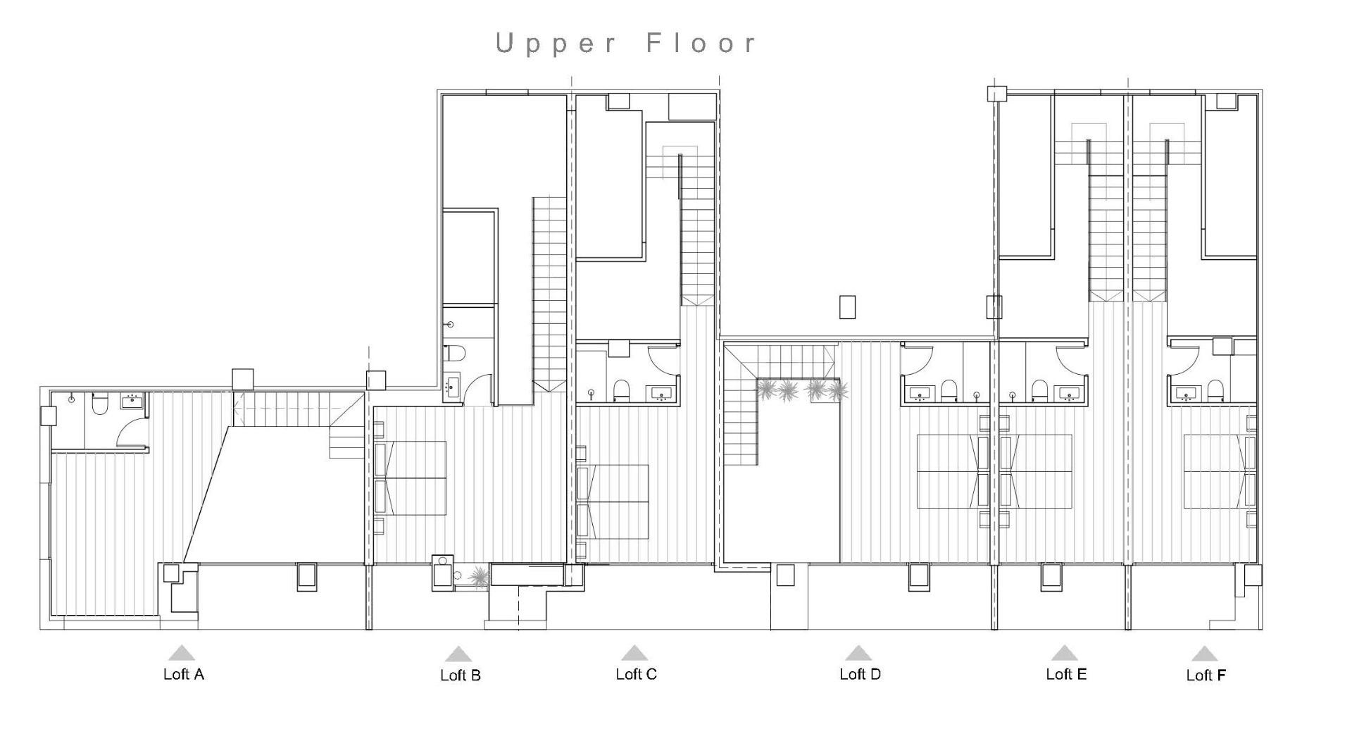
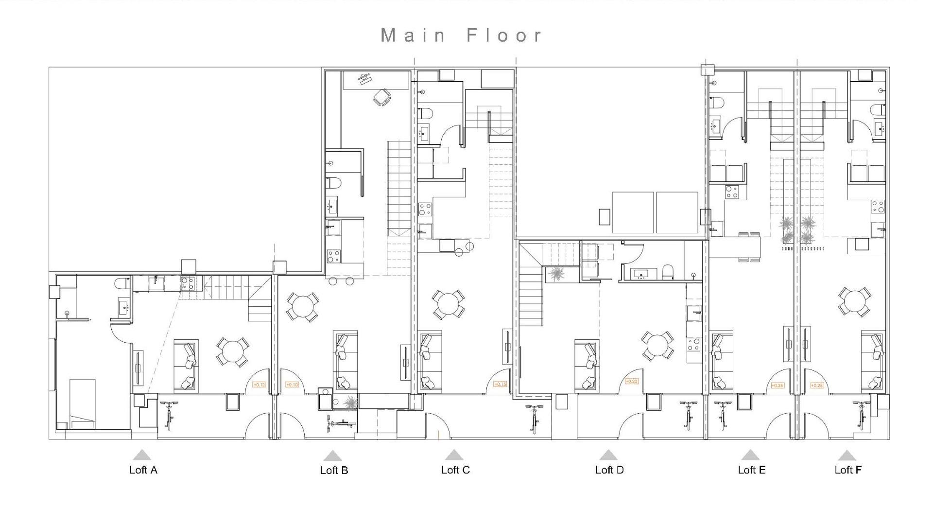
Modernos apartamentos dúplex tipo loft en el corazón de Alicante
Modernos apartamentos dúplex tipo loft en el corazón de Alicante~~Exclusiva promoción nueva en el barrio de Benalúa~Descubra una oportunidad excepcional para adquirir un elegante apartamento dúplex tipo loft en Benalúa, uno de los barrios más animados y bien comunicados de Alicante. Este proyecto único transforma seis locales comerciales en desuso en modernos lofts residenciales, ofreciendo un estilo de vida urbano a solo 1 km de la costa mediterránea. Benalúa es conocido por sus tiendas locales, cafeterías, actividad cultural y su proximidad al centro de la ciudad, lo que lo convierte en una zona muy codiciada tanto por residentes como por inversores.~~Diseño contemporáneo estilo loft~Cada vivienda ha sido completamente rediseñada para ofrecer un espacio fresco, abierto y elegante. La promoción incluye lofts dúplex de 1 y 2 dormitorios con 2 baños, todos ellos con impresionantes zonas de doble altura que potencian la luz natural y proporcionan un auténtico ambiente loft. La planta superior alberga un dormitorio y un baño completo, lo que crea privacidad y comodidad.~~Con acceso independiente desde la calle y terraza privada, cada apartamento combina la arquitectura moderna con la funcionalidad. Los acabados de alta calidad, las distribuciones contemporáneas y los interiores luminosos hacen de estos lofts una opción destacada para aquellos que buscan estilo y funcionalidad.~~Comodidad y servicios comunitarios~Los residentes disfrutarán de acceso a una piscina comunitaria situada dentro del edificio, que proporciona un ambiente relajante y refrescante para los cálidos días mediterráneos. Las terrazas privadas y las entradas independientes añaden un plus de comodidad y exclusividad.~~Ubicación privilegiada cerca de los principales puntos de interés~Con una ubicación perfecta tanto para vivir como para invertir, la promoción está rodeada de servicios esenciales y principales atracciones:~Paseo marítimo de Alicante: 1 km~Estación de tren de Renfe: 0,8 km~Centro comercial El Corte Inglés: 0,7 km~Palacio de Justicia de Alicante: 0,5 km~Aeropuerto de Alicante: 12 km~Puerto deportivo y puerto de Alicante: 2 km~Campos de golf (Alicante Golf): 7 km~~La zona ofrece excelentes conexiones de transporte público, lugares culturales, zonas verdes y fácil acceso a las hermosas playas de la ciudad.~~Una inversión inteligente en el estilo de vida costero de Alicante~Tanto si busca una vivienda habitual, una propiedad vacacional o una inversión con un gran potencial de alquiler, estos apartamentos dúplex tipo loft en Benalúa representan una oportunidad única en una de las zonas más prometedoras de Alicante.~~Póngase en contacto con nosotros hoy mismo para reservar su loft exclusivo y disfrutar de una vida moderna en el corazón de Alicante.~~* Acceso a piscina pendiente de aprobación por parte de la comunidad cuando se realice el cambio de uso de los locales.~
Utilizamos cookies para personalizar su experiencia de navegación y el contenido que se le muestra, así como sugerencias que pueden ser relevantes para usted. La tienda utiliza las cookies necesarias (que garantizan el funcionamiento del sitio o facilita su uso), por ejemplo, para almacenar configuraciones de filtrado o conexión, así como cookies analíticas. No utilizaremos ni permitiremos que terceros utilicen datos de análisis estadísticos para rastrear o recopilar cualquier información que le permita identificar a los visitantes de este sitio. Al hacer clic en "Acepto" o continuar la búsqueda en el sitio, usted acepta la grabación y el uso de cookies. Puede cancelar su consentimiento en cualquier momento cambiando la configuración de su navegador web y eliminando las cookies grabadas. Más información - en la política de cookies