Los campos de golf de clase mundial y los parques de magia, clubes de yates de renombre y restaurantes de moda, playas vírgenes, bañadas por el sol 11 meses del año - estos son los atributos de este vivir en el sur de la costa del sol.
Los estilos arquitectónicos, las opciones de los precios inmobiliarios, la infraestructura, el estado de ánimo ... En cada una de las 12 costas españolas Costa que cuenta ... Con el fin de elegir las vacaciones perfectas y la vida, tienes que sentir el espíritu de las ciudades acogedoras y limpias, las provincias españolas.
Celebrity Real Estate en España
A principios de 2014 España se unió a la lista de los países más atractivos para la adquisición de la propiedad. Y ya que los compradores a menudo no actúan ciudadanos de a pie, y las estrellas de clase mundial. ¿Quién en realidad cayó bajo el embrujo del flamenco y la fiesta?
Villa moderna de nueva construcción con características de lujo en Jávea
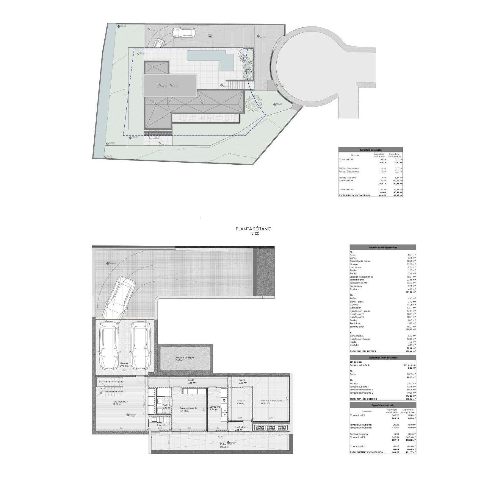
Villa moderna de nueva construcción con características de lujo en Jávea~~Vida mediterránea contemporánea en la Costa Blanca~Esta impresionante villa independiente de nueva construcción en Jávea combina acabados de alta calidad, un diseño elegante y una funcionalidad óptima en tres amplias plantas. Situada en una de las localidades costeras más codiciadas de la Costa Blanca Norte, la propiedad ofrece un entorno residencial tranquilo rodeado de verdes montañas, parques naturales y hermosas playas. Jávea es famosa por sus aguas cristalinas, su gastronomía tradicional y su estilo de vida mediterráneo, lo que la convierte en un lugar ideal tanto para vivir como para invertir.~~Amplio sótano diseñado para la versatilidad~La planta sótano está cuidadosamente diseñada para satisfacer las necesidades del estilo de vida moderno. Incluye un garaje abierto para dos coches, un cuarto de baño, un aseo de invitados, una sala de concepto abierto, una sala polivalente y un patio que aporta luz natural al espacio. Esta planta ofrece infinitas posibilidades, ya sea para un gimnasio, una sala de entretenimiento, una oficina o una suite para invitados.~~Elegante planta baja con espacios de estar conectados~La planta baja cuenta con un luminoso salón-comedor que se integra a la perfección con la cocina totalmente equipada, creando un espacio perfecto para las reuniones familiares. El vestíbulo de entrada, el aseo de invitados y los pasillos añaden practicidad y fluidez. Esta planta incluye dos cómodos dormitorios que comparten un moderno cuarto de baño y un amplio dormitorio principal con cuarto de baño en suite, que ofrece privacidad y comodidad.~~Lujosa suite principal en la planta superior~La planta superior está dedicada a un segundo dormitorio principal, que ofrece un refugio exclusivo con su propio cuarto de baño en suite, vestidor y pasillo. Este espacio privado garantiza comodidad y tranquilidad con hermosas vistas de los verdes paisajes circundantes.~~Vida al aire libre diseñada para el clima mediterráneo~Las zonas exteriores de la propiedad están pensadas para disfrutar de la vida al aire libre durante todo el año. Cuenta con dos terrazas cubiertas y dos terrazas descubiertas en la planta baja. Una de las terrazas cubiertas rodea la piscina, perfecta para relajarse en verano, mientras que la terraza descubierta junto a la cocina es ideal para comer al aire libre y celebrar reuniones.~~Equipada con calefacción por suelo radiante y aire acondicionado por conductos, la villa garantiza el confort en todas las estaciones.~~Ubicación privilegiada en Jávea~Playa del Arenal a 3 km~Puerto y marina de Jávea a 7 km~Club de golf de Jávea a 3 km~Aeropuerto de Alicante a 100 km~Aeropuerto de Valencia a 125 km~~Su hogar mediterráneo le espera~Tanto si busca una residencia de lujo, una casa de vacaciones o una inversión segura a largo plazo, esta villa le ofrece un estilo de vida excepcional en Jávea. Póngase en contacto con nosotros hoy mismo para concertar una visita y descubrir su futuro hogar en la Costa Blanca.~
Utilizamos cookies para personalizar su experiencia de navegación y el contenido que se le muestra, así como sugerencias que pueden ser relevantes para usted. La tienda utiliza las cookies necesarias (que garantizan el funcionamiento del sitio o facilita su uso), por ejemplo, para almacenar configuraciones de filtrado o conexión, así como cookies analíticas. No utilizaremos ni permitiremos que terceros utilicen datos de análisis estadísticos para rastrear o recopilar cualquier información que le permita identificar a los visitantes de este sitio. Al hacer clic en "Acepto" o continuar la búsqueda en el sitio, usted acepta la grabación y el uso de cookies. Puede cancelar su consentimiento en cualquier momento cambiando la configuración de su navegador web y eliminando las cookies grabadas. Más información - en la política de cookies