Los campos de golf de clase mundial y los parques de magia, clubes de yates de renombre y restaurantes de moda, playas vírgenes, bañadas por el sol 11 meses del año - estos son los atributos de este vivir en el sur de la costa del sol.
Los estilos arquitectónicos, las opciones de los precios inmobiliarios, la infraestructura, el estado de ánimo ... En cada una de las 12 costas españolas Costa que cuenta ... Con el fin de elegir las vacaciones perfectas y la vida, tienes que sentir el espíritu de las ciudades acogedoras y limpias, las provincias españolas.
Celebrity Real Estate en España
A principios de 2014 España se unió a la lista de los países más atractivos para la adquisición de la propiedad. Y ya que los compradores a menudo no actúan ciudadanos de a pie, y las estrellas de clase mundial. ¿Quién en realidad cayó bajo el embrujo del flamenco y la fiesta?
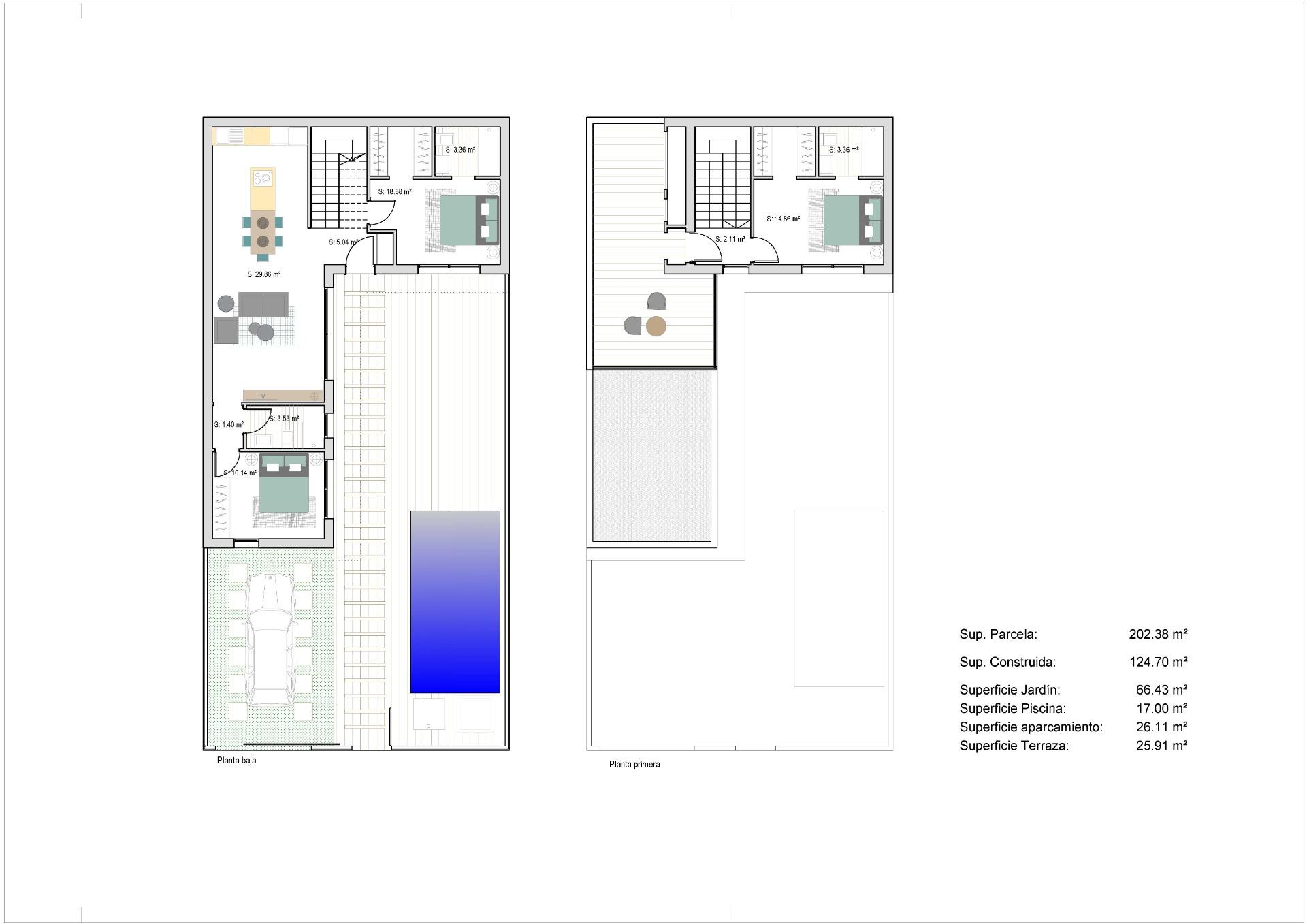
ADOSADOS DE OBRA NUEVA EN SAN JAVIER~ ~ Complejo de lujo de nueva construcción de 24 villas de una o dos plantas con piscina privada, zona de terraza y solarium con cocina de verano que permite disfrutar de todas las horas de sol, todos los días del año.~ ~ Cada villa dispone de 2 o 3 dormitorios y 2 baños equipados en una sola planta o 3 dormitorios y 3 baños equipados en dos niveles. ~ ~ Diseñadas con un estilo contemporáneo y un concepto abierto, compuesto por una cocina totalmente equipada y un salón-comedor.~ ~ La promoción está situada en San Javier (Murcia), cerca de la playa, rodeada de servicios, parques, instalaciones deportivas y varios campos de golf.~ ~ La vivienda cumplirá con los más altos estándares y estará equipada con:~ Piscina privada con ducha.~ Cocina completamente amueblada y equipada con horno, microondas, frigorífico, lavavajillas integrado, placa de cocción y campana extractora.~ Iluminación: tanto en el interior de la vivienda (comedor, cocina, pasillos y baños) como en las zonas exteriores.~ Armarios forrados con cajones.~ Cuartos de baño totalmente equipados con inodoro, mueble de baño, espejo y ducha con mamparas.~ Preinstalación de aire acondicionado por conductos.~ Solarium con cocina de verano.~ Plaza de aparcamiento en la parcela.~ ~ ~ San Javier está cerca de todos los servicios con fácil acceso a la playa, deportes acuáticos, tiendas y la red de transporte.~ ~ Aquí puede disfrutar de todas las instalaciones que San Javier tiene para ofrecer como las tiendas locales, bares y restaurantes, así como estar cerca de los centros comerciales, el aeropuerto de Murcia y todos los hermosos lugares que se encuentran a lo largo del Mar Menor. ~ ~ El aeropuerto de Corvera/Murcia está a 30 minutos y el de Alicante a 45 minutos.~ ~
Utilizamos cookies para personalizar su experiencia de navegación y el contenido que se le muestra, así como sugerencias que pueden ser relevantes para usted. La tienda utiliza las cookies necesarias (que garantizan el funcionamiento del sitio o facilita su uso), por ejemplo, para almacenar configuraciones de filtrado o conexión, así como cookies analíticas. No utilizaremos ni permitiremos que terceros utilicen datos de análisis estadísticos para rastrear o recopilar cualquier información que le permita identificar a los visitantes de este sitio. Al hacer clic en "Acepto" o continuar la búsqueda en el sitio, usted acepta la grabación y el uso de cookies. Puede cancelar su consentimiento en cualquier momento cambiando la configuración de su navegador web y eliminando las cookies grabadas. Más información - en la política de cookies