Los campos de golf de clase mundial y los parques de magia, clubes de yates de renombre y restaurantes de moda, playas vírgenes, bañadas por el sol 11 meses del año - estos son los atributos de este vivir en el sur de la costa del sol.
Los estilos arquitectónicos, las opciones de los precios inmobiliarios, la infraestructura, el estado de ánimo ... En cada una de las 12 costas españolas Costa que cuenta ... Con el fin de elegir las vacaciones perfectas y la vida, tienes que sentir el espíritu de las ciudades acogedoras y limpias, las provincias españolas.
Celebrity Real Estate en España
A principios de 2014 España se unió a la lista de los países más atractivos para la adquisición de la propiedad. Y ya que los compradores a menudo no actúan ciudadanos de a pie, y las estrellas de clase mundial. ¿Quién en realidad cayó bajo el embrujo del flamenco y la fiesta?
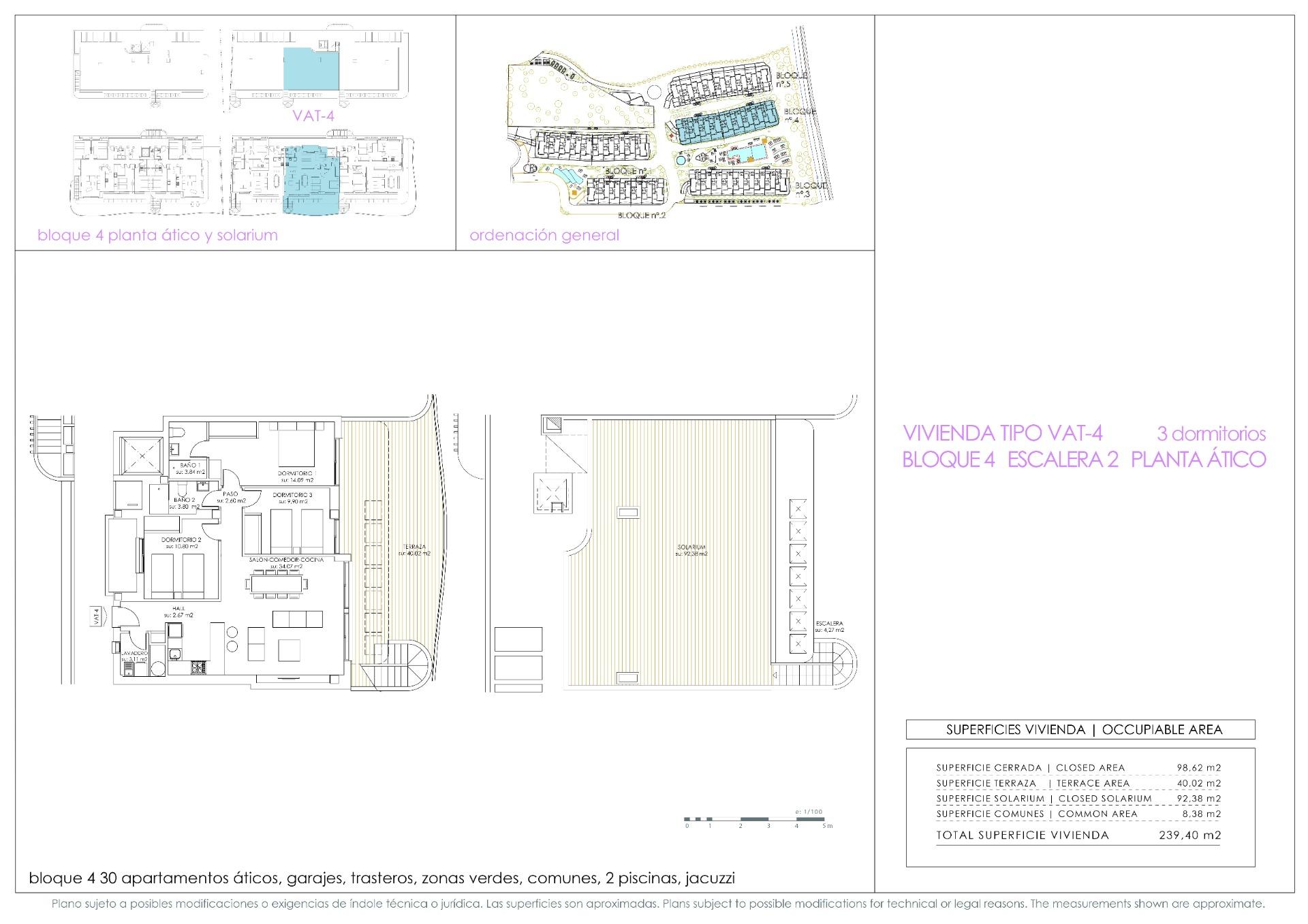
RESIDENCIAL DE OBRA NUEVA EN PLAYA FLAMENCA !!!~ ~ De un promotor de gran experiencia en la zona, estamos orgullosos de ofrecer este nuevo residencial recién lanzado a la venta a solo 500 m del mar en la popular zona de Playa Flamenca (Orihuela Costa).~ ~ Residencial con bonitas piscinas comunitarias, jacuzzis y bonitos jardines comunes. Todos los servicios como supermercados, bares y restaurantes, etc. se encuentran a poca distancia en un lugar muy céntrico de Orihuela Costa.~ ~ Amplia variedad de tipos para elegir: apartamentos de 2, 3 o 4 habitaciones. Pisos bajos con jardines privados o áticoss con solarium privados. Todas las viviendas cuentan con plaza de garaje y trastero incluidos en el precio.~ ~ El centro comercial Zenia Boulevard a 1 km y varios campos de golf como Villamartín, Campoamor a 5 km de este residencial lo convertirán en un lugar ideal para sus vacaciones o su vida permanente.~
Nous utilisons des cookies pour personnaliser votre expérience de navigation et le contenu qui vous est présenté, ainsi que des suggestions qui pourraient vous intéresser. Le magasin utilise à la fois les cookies nécessaires (assurant le fonctionnement du site ou facilitant son utilisation), par exemple pour stocker les paramètres de filtrage ou de connexion, ainsi que des cookies analytiques. Nous n'utiliserons et n'autoriserons aucune tierce partie à utiliser des données d'analyse statistique afin de suivre ou de collecter toute information permettant d'identifier les visiteurs de ce site. En cliquant sur "J'accepte" ou en poursuivant la recherche sur le site, vous acceptez l'enregistrement et l'utilisation de cookies. Vous pouvez annuler votre consentement à tout moment en modifiant les paramètres de votre navigateur Web et en supprimant les cookies enregistrés. Plus d'informations dans – la politique de cookie.