Los campos de golf de clase mundial y los parques de magia, clubes de yates de renombre y restaurantes de moda, playas vírgenes, bañadas por el sol 11 meses del año - estos son los atributos de este vivir en el sur de la costa del sol.
Los estilos arquitectónicos, las opciones de los precios inmobiliarios, la infraestructura, el estado de ánimo ... En cada una de las 12 costas españolas Costa que cuenta ... Con el fin de elegir las vacaciones perfectas y la vida, tienes que sentir el espíritu de las ciudades acogedoras y limpias, las provincias españolas.
Celebrity Real Estate en España
A principios de 2014 España se unió a la lista de los países más atractivos para la adquisición de la propiedad. Y ya que los compradores a menudo no actúan ciudadanos de a pie, y las estrellas de clase mundial. ¿Quién en realidad cayó bajo el embrujo del flamenco y la fiesta?
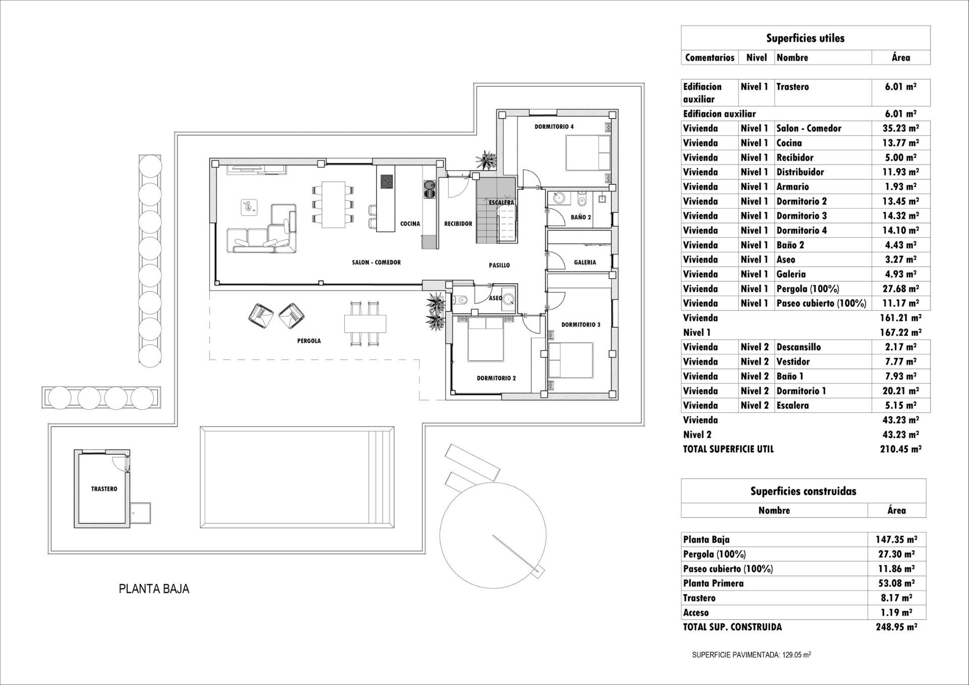
Villas de obra nueva situadas en término de Aspe.~~Villas de obra nueva con varios modelos a elegir entre 2, 3 o 4 dormitorios, de una o 2 plantas y construidas con losa o con estructura: dependiendo del modelo y la parcela elegida, se calculará el precio exacto.~~Todas las villas se construyen en parcelas rústicas de más de 10.000 m2 de los cuales se vallarán unos 2.500 m2.~~Las villas disponen de cocina americana con el salón, armarios empotrados, piscina privada, porche, trastero y plaza de parking exterior.~~Hay varias parcelas a elegir, para el cálculo del precio se ha considerado una parcela con un precio de 77.500 eur (si se elige otra parcela, se pagará o abonará la diferencia según el precio de la misma).~~Realizada en régimen de auto promoción, entrega en unos 12 meses desde la concesión de la licencia.~~Si busca un entorno tranquilo, cerca de pueblos típicos españoles alejados de la masificación turística, rodeado de montañas, con una amplísima parcela y a unos 30 minutos del mar, esta es su casa.~~Aspe es un típico pueblo español con todos los servicios para el día a día, rodeado de montañas y con varios parajes naturales en las cercanías donde se pueden hacer rutas de senderismo o mountain bike.~~Situado a 25 km de la playa, a 9 km de Elche y a unos 20 km del aeropuerto de Alicante.~
Modern apartment with a pool and 250m from PLaya del Cura
TA1088
€ 0
Nous utilisons des cookies pour personnaliser votre expérience de navigation et le contenu qui vous est présenté, ainsi que des suggestions qui pourraient vous intéresser. Le magasin utilise à la fois les cookies nécessaires (assurant le fonctionnement du site ou facilitant son utilisation), par exemple pour stocker les paramètres de filtrage ou de connexion, ainsi que des cookies analytiques. Nous n'utiliserons et n'autoriserons aucune tierce partie à utiliser des données d'analyse statistique afin de suivre ou de collecter toute information permettant d'identifier les visiteurs de ce site. En cliquant sur "J'accepte" ou en poursuivant la recherche sur le site, vous acceptez l'enregistrement et l'utilisation de cookies. Vous pouvez annuler votre consentement à tout moment en modifiant les paramètres de votre navigateur Web et en supprimant les cookies enregistrés. Plus d'informations dans – la politique de cookie.